CLIFF elektrikerise kerisekive rõhutav disain on inspireeritud põhjamaistest rannakaljudest. Lisaks pilkupüüdvale välimusele teeb CLIFF kerise eriliseks tõhus ja keskkonnasäästlik ülesehitus. Kerise korpus valmib roostevaba teraslehe väljalõigetest, mis tekivad STEEL elektrikerise tootmisel. Nii ei teki metallijääke ning kogu materjal kasutatakse täielikult ära. Väikesed ohutuskaugused ja sihvakas vorm teevad CLIFF kerise sobivaks ka väiksematesse saunaruumidesse. Sisemine õhutunnel kiirendab kütmist 25% ning pikendab kütteelementide eluiga. Tänu suurele kivikogusele annab CLIFF keris maheda ja kauakestva leili ning kindlustab lõõgastava saunaelamuse. Keris on pälvinud tootedisainiauhinna RedDot Award 2021.
Soovitame kerisele paigaldada kaitsepiirde – kas HUUMi kaitsepiirde või eritellimusena valmistatud kaitsepiirde, et tagada saunas suurem ohutus ja mugavus.
| Mudel | CLIFF 6 | CLIFF 9 | CLIFF 11 |
|---|---|---|---|
| Keris | |||
| Võimsus (kW) | 6 | 9 | 10,5 |
| Leiliruum min. (m3) | 5 | 8 | 10 |
| Leiliruum max. (m3) | 9 | 13 | 16 |
| Kivide mahutavus (kg) | 75 | 75 | 75 |
| Kaal (kg) | 16 | 16 | 17 |
| Kõrgus (mm) | 975 | 975 | 975 |
| Laius (mm) | 270 | 270 | 270 |
| Sügavus (mm) | 270 | 270 | 270 |
| Ühendus | |||
| Kaitse | 10 A | 16 A | 16 A |
| Toitepinge, 3-faasiline | 3/N~400V | 3/N~400V | 3/N~400V |
| Toitekaabel (N x mm2) | 5 x 2,5 | 5 x 2,5 | 5 x 2,5 |
| Ohutuskaugused | |||
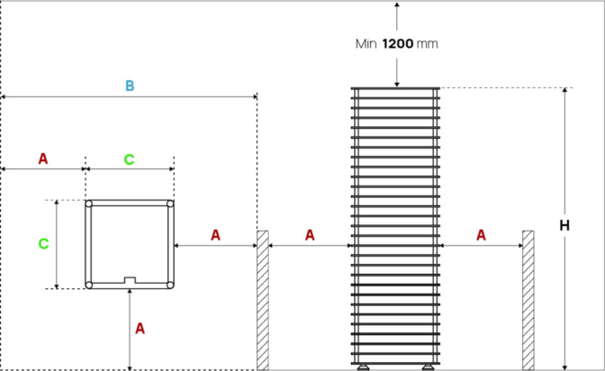
| A (mm) | 60 | 240 | 240 |
| B (mm) | 390 | 750 | 750 |
| C (mm) | 270 | 270 | 270 |
| H (mm) | 975 | 975 | 975 |

- elektrikeris
- reguleeritavad jalad
- UKU juhtsüsteemi
- 75 kg kerisekive (3-5 cm)
- kuumakindlat toitekaablit
- Saad valida oma sauna sisekujundusega sobiva juhtpuldi: GLASS, CLASSIC või WOOD
- UKU juhtsüsteemi komplektiga on algselt kaasas mustast plastikust juhtpult CLASSIC Black
- Puidust kaitsepiire täiendab nii disaini, kui lisab ohutust.
- Täiendava disainivõimalusena saab CLIFF elektrikerise uputada lava sisse.
- uputatud keris peab ulatuma lava pinnast välja min 550 mm
- uputusava lõikeservade katmiseks kasuta CLIFF/STEEL elektrikerise uputuskraed
CLIFF elektrikerise kerisekive rõhutav disain on inspireeritud põhjamaistest rannakaljudest. Lisaks pilkupüüdvale välimusele teeb CLIFF kerise eriliseks tõhus ja keskkonnasäästlik ülesehitus. Kerise korpus valmib roostevaba teraslehe väljalõigetest, mis tekivad STEEL elektrikerise tootmisel. Nii ei teki metallijääke ning kogu materjal kasutatakse täielikult ära. Väikesed ohutuskaugused ja sihvakas vorm teevad CLIFF kerise sobivaks ka väiksematesse saunaruumidesse. Sisemine õhutunnel kiirendab kütmist 25% ning pikendab kütteelementide eluiga. Tänu suurele kivikogusele annab CLIFF keris maheda ja kauakestva leili ning kindlustab lõõgastava saunaelamuse. Keris on pälvinud tootedisainiauhinna RedDot Award 2021.
Soovitame kerisele paigaldada kaitsepiirde – kas HUUMi kaitsepiirde või eritellimusena valmistatud kaitsepiirde, et tagada saunas suurem ohutus ja mugavus.
| Mudel | CLIFF 6 | CLIFF 9 | CLIFF 11 |
|---|---|---|---|
| Keris | |||
| Võimsus (kW) | 6 | 9 | 10,5 |
| Leiliruum min. (m3) | 5 | 8 | 10 |
| Leiliruum max. (m3) | 9 | 13 | 16 |
| Kivide mahutavus (kg) | 75 | 75 | 75 |
| Kaal (kg) | 16 | 16 | 17 |
| Kõrgus (mm) | 975 | 975 | 975 |
| Laius (mm) | 270 | 270 | 270 |
| Sügavus (mm) | 270 | 270 | 270 |
| Ühendus | |||
| Kaitse | 10 A | 16 A | 16 A |
| Toitepinge, 3-faasiline | 3/N~400V | 3/N~400V | 3/N~400V |
| Toitekaabel (N x mm2) | 5 x 2,5 | 5 x 2,5 | 5 x 2,5 |
| Ohutuskaugused | |||
| A (mm) | 60 | 240 | 240 |
| B (mm) | 390 | 750 | 750 |
| C (mm) | 270 | 270 | 270 |
| H (mm) | 975 | 975 | 975 |

- elektrikeris
- reguleeritavad jalad
- UKU juhtsüsteemi
- 75 kg kerisekive (3-5 cm)
- kuumakindlat toitekaablit
- Saad valida oma sauna sisekujundusega sobiva juhtpuldi: GLASS, CLASSIC või WOOD
- UKU juhtsüsteemi komplektiga on algselt kaasas mustast plastikust juhtpult CLASSIC Black
- Puidust kaitsepiire täiendab nii disaini, kui lisab ohutust.
- Täiendava disainivõimalusena saab CLIFF elektrikerise uputada lava sisse.
- uputatud keris peab ulatuma lava pinnast välja min 550 mm
- uputusava lõikeservade katmiseks kasuta CLIFF/STEEL elektrikerise uputuskraed
LISATOOTED
RedDot auhinna pälvinud disain
CLIFF elektrikeris on inspireeritud Põhja-Eesti kaljurannikust, esindades maa ja kivi elemente. Kerisel on väike ökoloogiline jalajälg. Suure võimsuse ja suure hulga kivide juures kasutab see minimaalselt põrandapinda.
CLIFF keris ühendadab kaasaegse kodusauna jaoks olulised omadused. Kompaktne vorm, läbimõeldud sisu ning rikkalik leil nagu taditsioonilises puuküttesaunas. 2021. aastal pärjati CLIFF saunakeris rahvusvaheliselt maineka tootedisainiauhinnaga RedDot.
Väikese jalajäljega saunakerised CLIFF ja STEEL
CLIFF elektrikeris moodustab lahutamatu paari roostevabast terasest STEEL elektrikerisega. Ilma üheta ei oleks teist. Nimelt toodetakse need kaks saunakerist ühisest roostevaba terase lehest. CLIFF kerise ribid valmistatakse STEEL kerise väljalõigetest kogu materjali täielikult ära kasutades ja ilma jääke tekitamata.
Meile on oluline leida igapäevaselt viise hoolivaks ja väikese jalajäljega tootmiseks, et saaksime oma järeltulijatele pärandada sama kauni looduse, kui see on täna.

















